ジーベック御嶽山 3階 1K

東急池上線御嶽山駅 徒歩6分
物件名
ジーベック御嶽山
賃料
92,000円
貸マンション
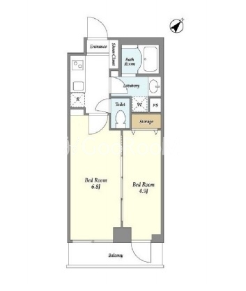
間取り
1K

管理費
10,000円
敷金
1ヶ月
礼金
なし
所在地 東京都大田区西嶺町4-4
交通 東急池上線御嶽山駅 徒歩6分
東急多摩川線沼部駅 徒歩11分

物件概要

築年月 2020年06月 面積 25.17㎡
建物階数 5階 部屋所在階 3階
建物構造 SRC
引渡/入居時期 相談 現況 空室
物件特徴 ペット相談、分譲タイプ、デザイナーズ
物件設備 オートロック、防犯カメラ、宅配BOX、駐輪場、常時ゴミ出し可能、BS端子、CS、CATV、フローリング、B・T別室、室内洗濯機置場、バルコニー、ガスコンロ付、洗面所独立、浴室乾燥機、システムキッチン


ジーベック御嶽山は、総階数5階建、SRC構造の貸マンションです。2020年06月築の物件です。

ジーベック御嶽山の所在地は、東京都大田区西嶺町4-4です。最寄り駅である御嶽山駅までは徒歩6分で、駅の近くに物件がございます。御嶽山駅は、東急池上線が利用可能です。沼部駅は、東急多摩川線が利用可能です。

  • 写真や間取り図が現状と相違する場合は現状を優先させていただきます。
  • 掲載している物件が万が一ご成約の場合はご了承ください。
※物件掲載内容と現況に相違がある場合は現況を優先と致します。

ジーベック御嶽山と同じ駅の物件

  • ブランズ南雪谷 ブランズ南雪谷
    築年数:2011年07月築
    所在地:東京都大田区

    最寄駅:雪が谷大塚駅 御嶽山駅

デザイナーズマンション

  • パークハビオ目黒リバーサイド パークハビオ目黒リバーサイド
    築年数:2015年02月築
    所在地:東京都品川区

    最寄駅:不動前駅 目黒駅
  • レジデンシャル目黒 レジデンシャル目黒
    築年数:2011年01月築
    所在地:東京都目黒区

    最寄駅:不動前駅 目黒駅
  • アーコサンティ アーコサンティ
    築年数:2015年02月築
    所在地:東京都品川区

    最寄駅:中延駅 中延駅
  • リーガランド都立大学2 リーガランド都立大学2
    築年数:2019年06月築
    所在地:東京都目黒区

    最寄駅:都立大学駅

分譲賃貸マンション

  • ディアスタ下目黒 ディアスタ下目黒
    築年数:2013年03月築
    所在地:東京都目黒区

    最寄駅:学芸大学駅 武蔵小山駅
  • プラウド恵比寿 プラウド恵比寿
    築年数:2012年02月築
    所在地:東京都渋谷区

    最寄駅:恵比寿駅 恵比寿駅
  • フォルス学芸大学ラクシーズ フォルス学芸大学ラクシーズ
    築年数:2007年07月築
    所在地:東京都目黒区

    最寄駅:学芸大学駅 祐天寺駅
  • オープンレジデンス三軒茶屋 オープンレジデンス三軒茶屋
    築年数:2010年05月築
    所在地:東京都世田谷区

    最寄駅:三軒茶屋駅 三軒茶屋駅